WH Builders

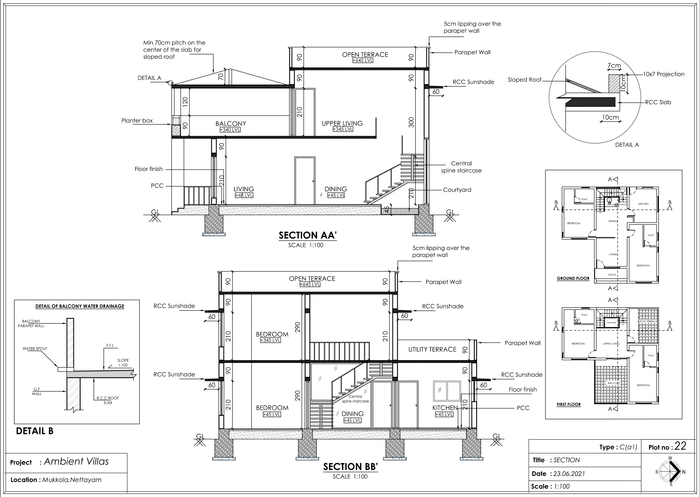
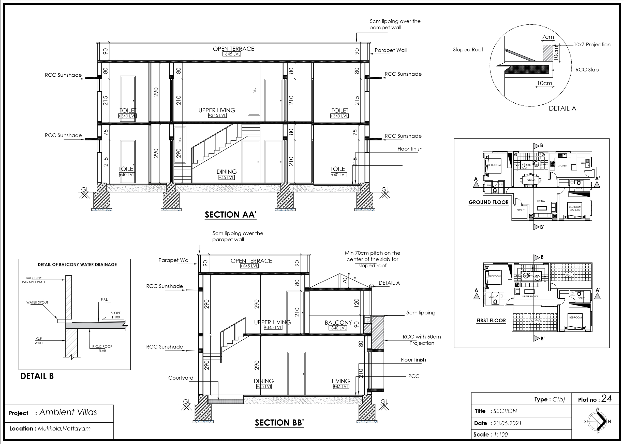
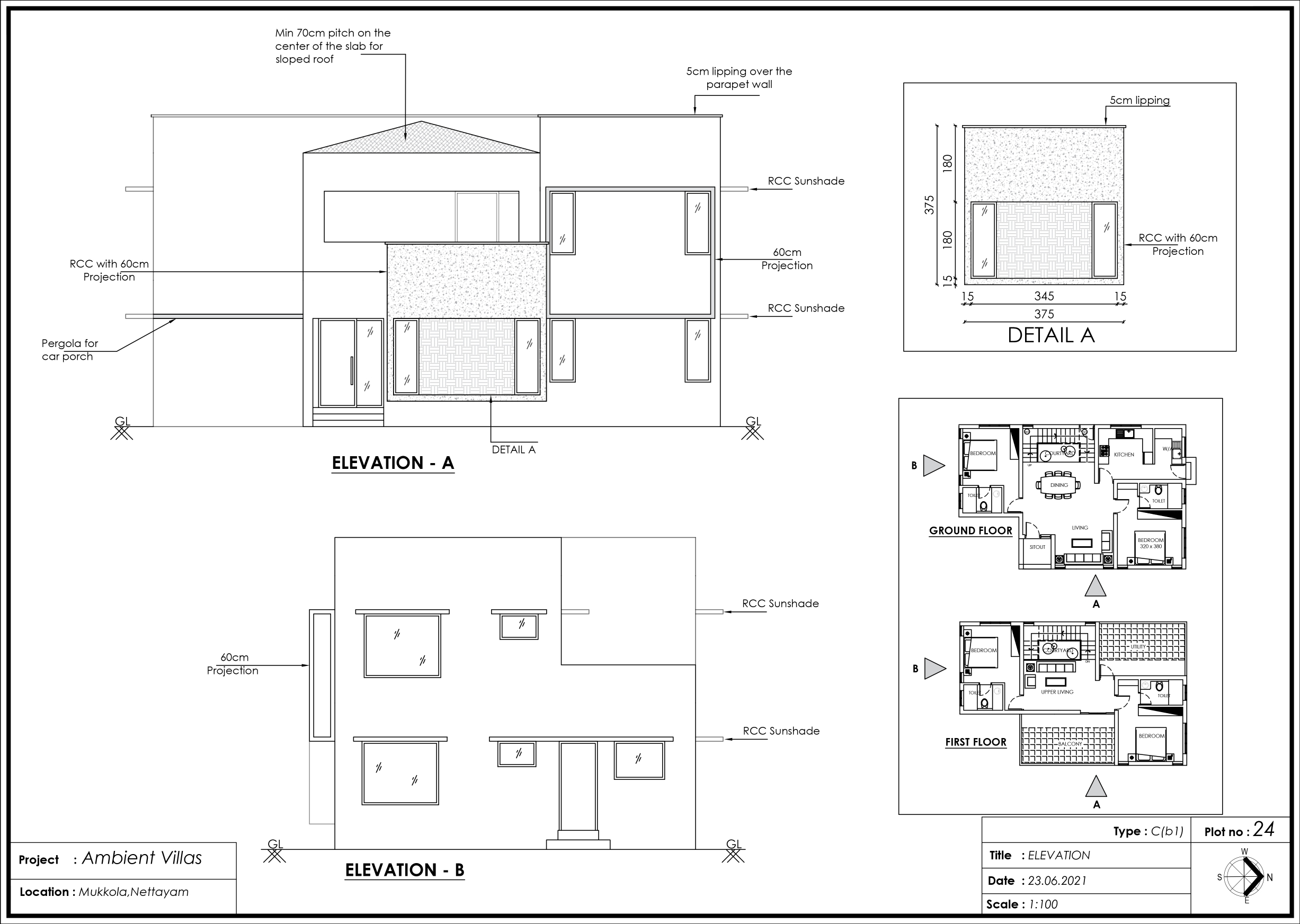
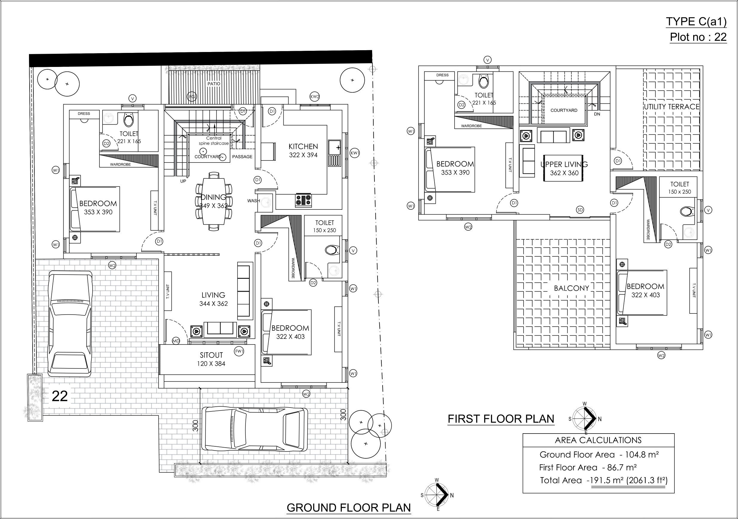
Ambient Villas
Experience Tranquility in Every Corner
Villa Planning & Architecture
Landscaping & Outdoor Design